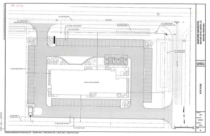
The Flathead County Board of Adjustment on Tuesday approved the Conditional Use Permit (CUP) for a three-story hotel just off the Swan Highway in Bigfork.
The 2-acre site is located just east of the intersection of Montana Highway 83 and Montana Highway 35. Bigfork Hotel Group LLC, the project’s applicant, proposed the hotel at 1247 Cala Way as a 65-room, economy-style Microtel by the Wyndham Hotel Management Group.
In April 2024, the Bigfork Land Use Advisory Committee (BLUAC) held a public hearing on the project before sending the project to the Board of Adjustment. The committee recommended that it deny the permit, citing concerns about the building’s aesthetics, an increase to traffic, and local sewer capacity.
The following month, the Board of Adjustment held a separate public hear

Flathead Beacon

FOX News
News 5 Cleveland Politics
NBC News