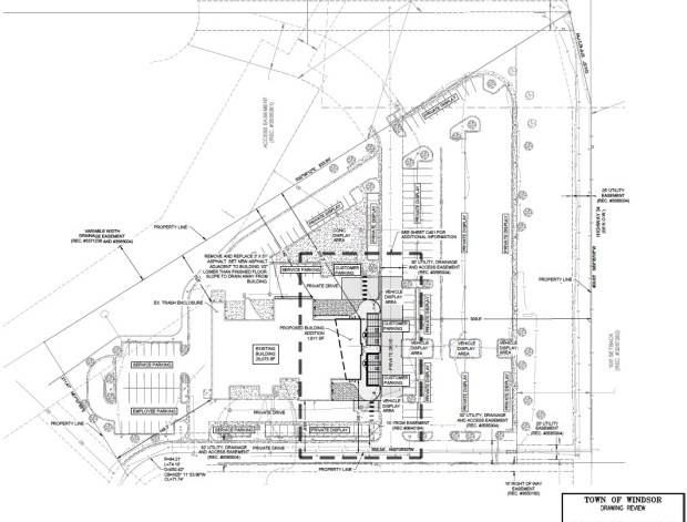
Fowler Kia of Windsor, an automobile dealership that is part of the Fowler Automotive Group from Tulsa, Oklahoma, will expand its showroom at the dealership located along U.S. 34 in Windsor.
Fowler Holding Co. bought Peak Kia North in 2023 and is expanding the showroom at the dealership, according to a memo to be distributed to members of the Windsor Planning Commission Wednesday.
“In the automobile business, the franchises have an image, and Kia changed its image about 18 or 24 months ago,” Charles Griffin, chief operating officer of Fowler Holding Co., told BizWest. “One of the conditions of our purchase was that we make the dealership image-compliant.”
The expansion is considered a minor site-plan adjustment and thus does not require planning commission approval; the planning staff h

The Reporter-Herald

AlterNet
The List
The Daily Mining Gazette
The Gaston Gazette Sports
Raw Story
ABC30 Fresno Sports
Desert Sun Sports
ABC30 Fresno Politics