Facebook 0

X (Twitter)

LinkedIn

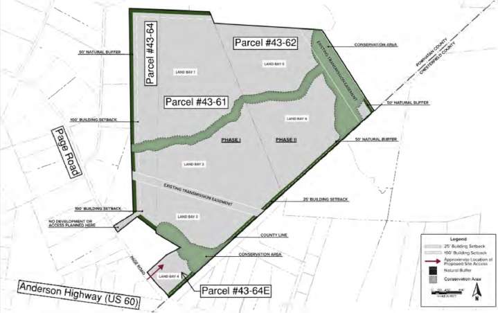
After deferring the decision for a month, Powhatan County Planning Commissioners have given a thumbs down to a proposed expansion of a planned data center campus along Page Road.

Commissioners voted 5-0 Oct. 7 to recommend denial of a rezoning of about 61 acres that would be tacked onto a 120-acre planned data center development from California-based Province Group.

The expansion proposal still has a chance for approval from the board of supervisors, which is tentatively scheduled to make the final decision on the project Oct. 27.

If the additional 60 acres are approved by supervisors, it would take the campus from a previously proposed build-out of 1.5 million square feet of data center space to 2 million square feet.

The total 181 acres would resu

See Full Page