A planned north Phoenix park now has a name and a design plan.

The Phoenix Parks and Recreation Board voted unanimously last week to approve the name Inspiration Mountain Park at Inspiration Mountain Parkway and Molly Lane. The name was the heavy favorite in a community survey earlier this year.

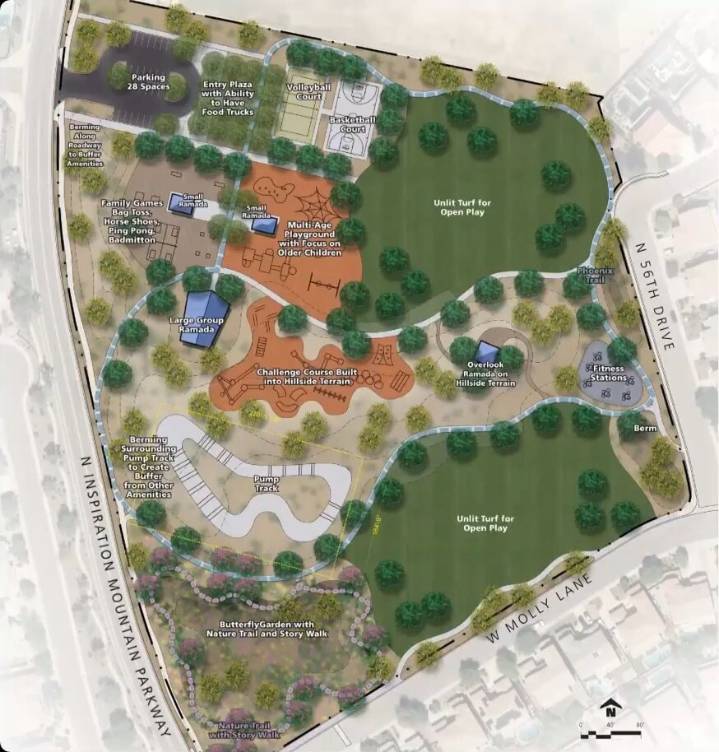
The survey also asked which of two park design concepts residents preferred, and the second concept won 74% to 26% out of 595 respondents. The Parks Board vote approved that design concept as well as the name.

The highlighted area on this map shows the property for the planned Inspiration Mountain Park at Inspiration Mountain Parkway and Molly Lane. (Courtesy city of Phoenix)

Students at the K-8 Inspiration Mountain School, directly adjacent to the planned park, also voted on the design conce

See Full Page